龙岗创星九年一贯制学校
深圳,广东,中国
2021/07- 2021/09
业主:深圳市龙岗区公务署
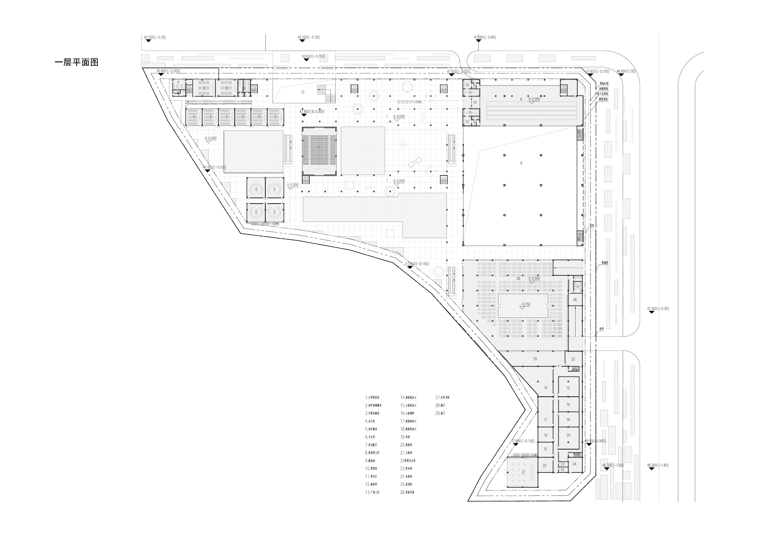
通过对场地的景观性格、地景线索、地形变化的梳理和演绎,从而整理出西低东高的三级平台——地景平台、城市平台和运动平台。地景平台营造在自然中学习的氛围,使学生专注自然,释放天性,体验艺术。城市平台营造在城市中学习的氛围,大量的架空层容纳丰富的活动,并与城市和社区齐平形成开放互动的空间。运动平台提供可共享的运动空间,以操场为主,以城市为背景。教学楼东西向水平展开,通过架空的动作漂浮在三级平台上,从北往南逐步松弛。校园以地景感和水平感为特征,同时提示着自然、建筑、城市三者相互咬合的时间感和空间感。
 
 
 
 
 
 
 
 
 
 
  
  

 
 
位置
深圳,广东,中国
时间
2021/09- 2021/10
业主
深圳市龙岗区公务署
	深圳,广东,中国
时间
2021/09- 2021/10
业主
深圳市龙岗区公务署
面积
70000 m²
项目类型
教育
项目状态
竞赛
	70000 m²
项目类型
教育
项目状态
竞赛
设计团队
郭廖辉 王子千 王文楷
合作设计
浙江大学建筑设计研究院国际设计中心
	郭廖辉 王子千 王文楷
合作设计
浙江大学建筑设计研究院国际设计中心